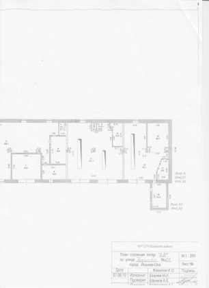
Продается производство, 955 кв.м., 1/1 эт
Обзор№ - 2013
| Стоимость | 20 000 000 |
|---|
Адрес
| Населенный пункт | Йошкар-Ола |
|---|---|
| Улица | улица Крылова |
В избранное Продажа базы на Крылова, 63
Продаю базу на Крылова, 63
Площадь здания 955 кв.м. и площадь зем.уч. 5087кв.м.
Цена - 20 млн.р.
Производственное здание, назначение: нежилое здание, общая площадь 955,3 кв. м, инв.№ 8895, лит.А, А1, 1этаж, кадастров. номер (или условный) 12-12-01/094/2010-320.
Земельный участок, категория земель - земли населенных пунктов, вид разрешенного использования: под производственные цели, общая площадь 5087 кв.м., кадастровый номер: 12:05:0401002:41.























































