Инвестиционное предложение. Торгово-офисный центр в центре города
Предлагается к продаже торгово-офисный центр класса «A» в стадии проектирования с возможностью строительства под ваши задачи: ресторан, офис, торговый бутик и другие форматы. Объект расположен в центре города на улице Первомайская, на первой линии домов, что обеспечивает превосходную видимость и узнаваемость.
Основные характеристики объекта:
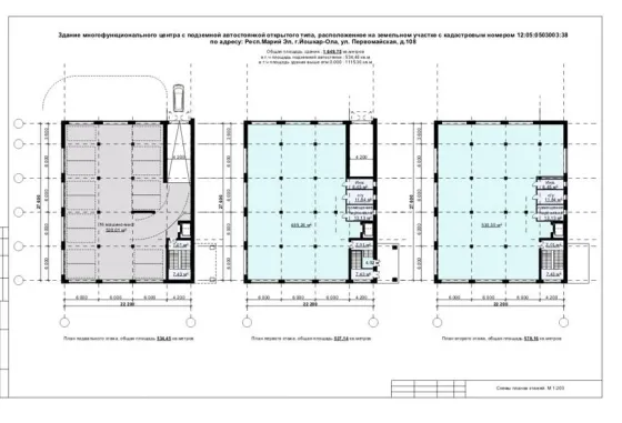
- Площадь здания: 1 200 м²
- Тип объекта: торгово-офисный центр, здание целиком
- Этажность: 2 этажа
- Этаж: помещение на 2 этаже
- Высота потолков: 4 м
- Класс здания: A
- Тип здания: торговый центр, монолитный дом
- Планировка: открытая (возможна гибкая организация пространства)
- Отделка: под чистовую / офисная, стандартная
- Состояние: под чистовую отделку, проектируемое здание
- Электрическая мощность: 50 кВт
- Отопление: автономное газовое
- Окна: витринные, отлично подходят для торговых площадей и ресторанов
- Вход: с улицы, общий, удобный для посетителей
- Право собственности: собственник
- Стоимость: 216 000 000 руб. (вариант задания цены — за весь объект)
Парковка:
- Подземная парковка в здании
- На 15 машиномест
- Удобный доступ для арендаторов и клиентов
Транспортная доступность и окружение:
- Центр города, улица Первомайская
- Первая линия, интенсивный автомобильный и пешеходный трафик
- Остановка общественного транспорта в непосредственной близости
- Маршруты троллейбусов: №1
- Маршруты маршрутных такси: №17, 21, 5, 24
- Сформировавшийся крупный административно-жилой район
Преимущества проекта:
- Готовность реализовать строительство «под ключ» с учетом ваших требований к функционалу и планировкам (ресторан, офисы, бутики, шоу-румы, услуги и т. п.)
- Высокий пешеходный и транспортный поток, что делает объект привлекательным для ритейла и общепита
- Современное инженерное оснащение, автономное отопление, витринное остекление
- Подземная парковка, редкая для центральных районов города
- Возможность гибкой организации внутренних пространств под нескольких арендаторов или единого крупного оператора
Финансовые условия:
- Тип сделки: продажа
- Стоимость: 216 000 000 руб.
- Возможна и частичное участие в проекте по договоренности
Правовой статус:
- Юридический адрес: предоставляется
- Сделка от собственника
Идеально подходит для:
- Инвесторов, ищущих доходный объект в центральной части города
- Сетевых и локальных ритейлеров
- Ресторанных концепций, кафе, гастропроектов
- Офисных компаний, банков, страховых, управленческих и IT-компаний
- Медицинских и образовательных центров премиального уровня
По запросу предоставим проектные материалы и более подробную информацию по условиям участия и возможностям адаптации объекта под ваш бизнес.







